Higher Education
Higher Education

Tonlowan Research Building
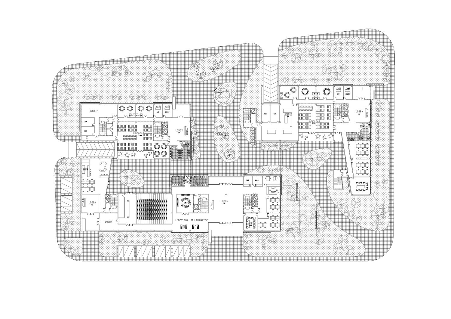
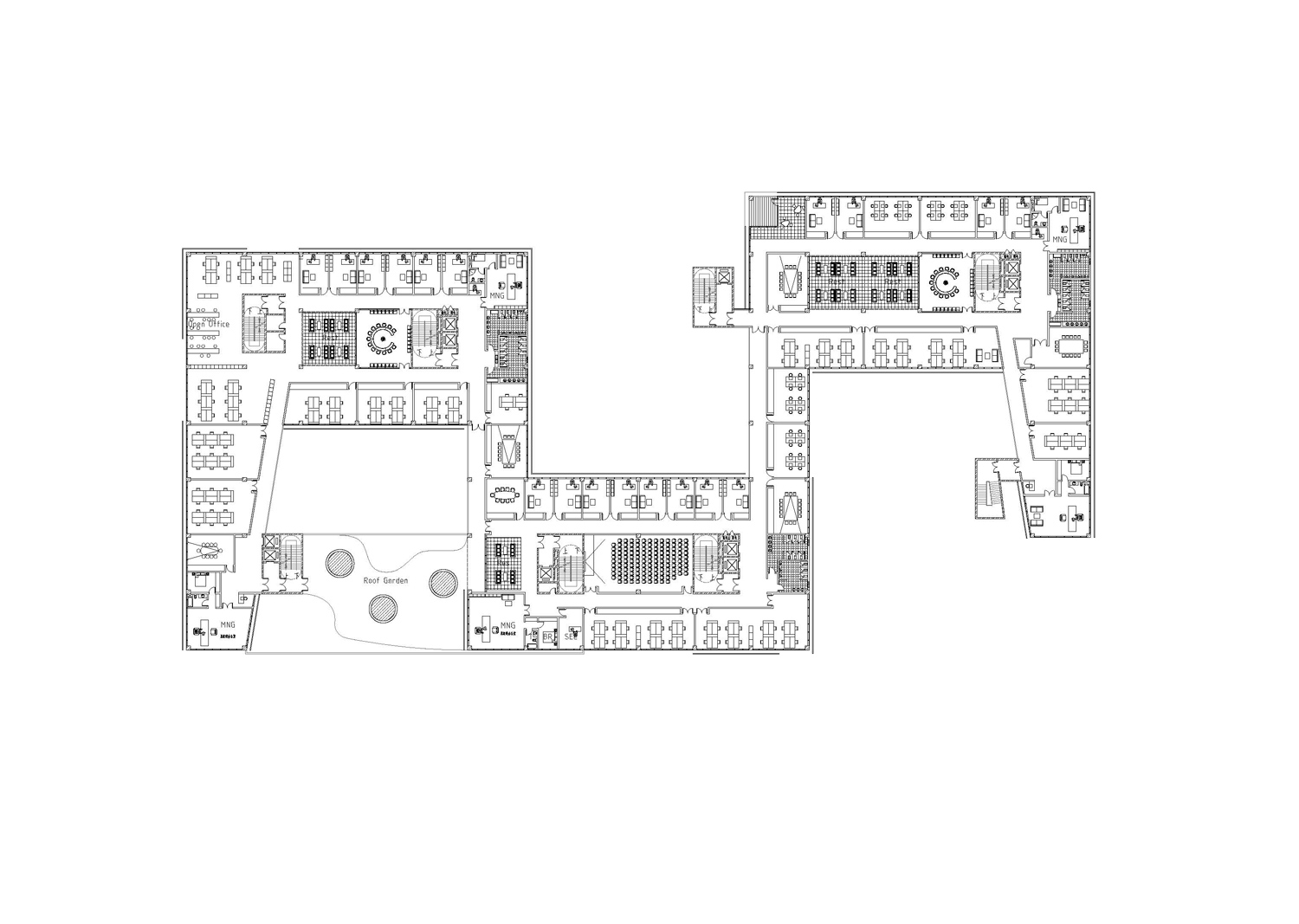
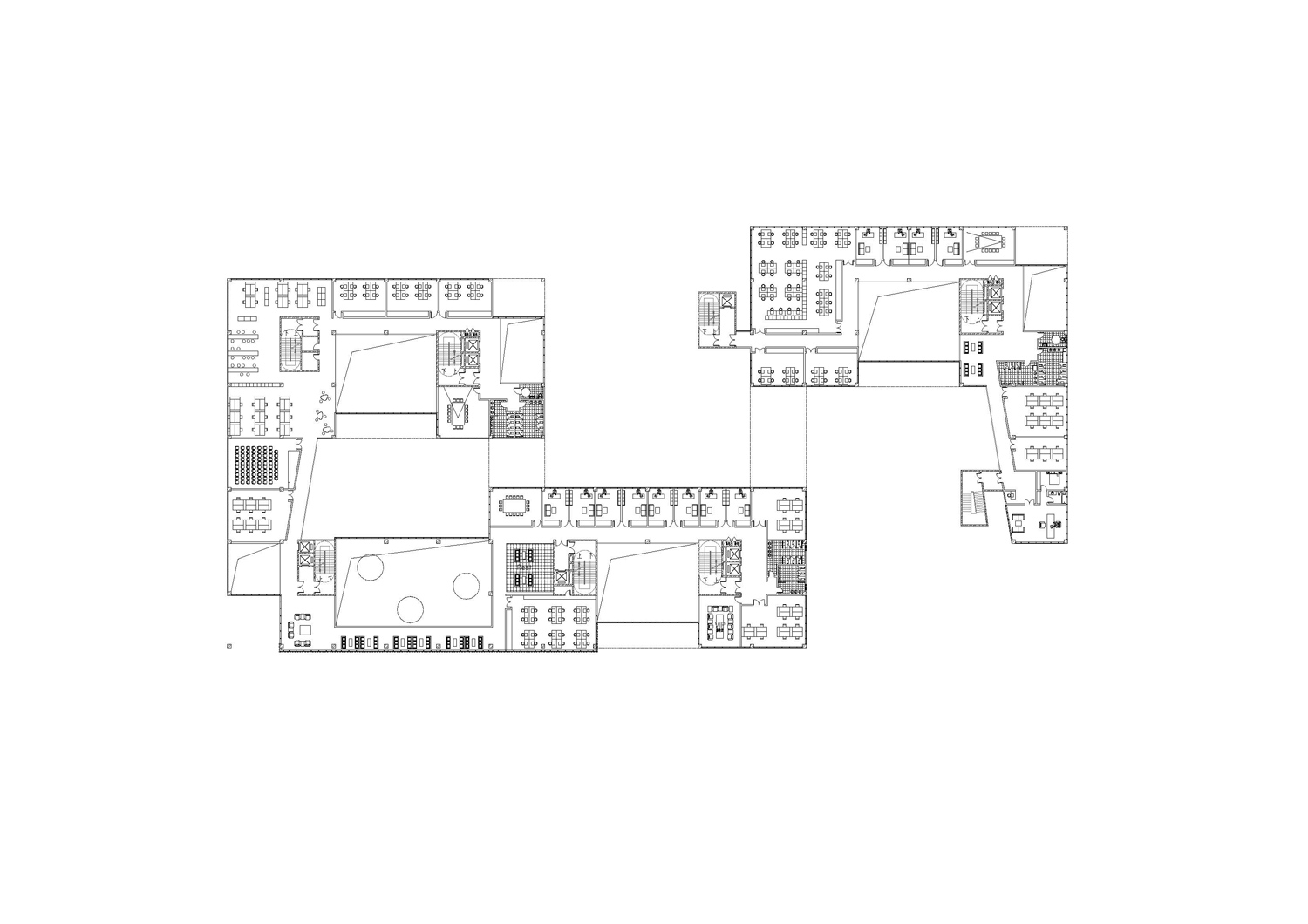
The Research Building at Fuzhou University is a 500,000 sq ft facility that encourages corporate collaboration with the university. Amenities include two restaurants, a multipurpose room, underground parking, roof gardens, balconies, and collaborative spaces.
The building is sustainable, with an abundance of light, air, and accessibility to the outdoors. The building is flexible and stuffed with amenities to attract corporate tenants.
The building is sustainable, with an abundance of light, air, and accessibility to the outdoors. The building is flexible and stuffed with amenities to attract corporate tenants.
Location:
Fozhou, Fujian, China
Status:
Unbuilt
Client:
Fuzhou University
Type:
Academic Research Building
Size:
500,000 ft2 / 46,500 m2








