
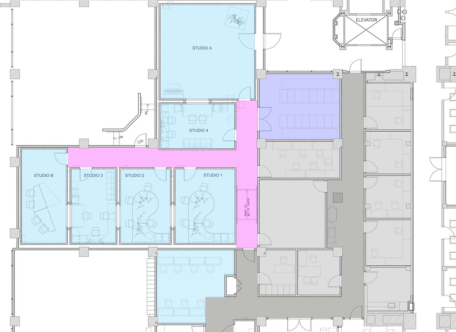
WFUV Radio Station & Recording Studio
Provided schematic design and renderings for the proposed upgrades to the WFUV Studio facilities our firm had completed 20 years prior. The new scope primarily included technology upgrades to equipment, cabling, and related millwork as informed by post-pandemic production strategies. Lighting and other functional and aesthetic improvements in the performance spaces were also included.
Provided detailed equipment and custom millwork plans for each room to determine a project budget. Architectural services required close coordination with the HVAC, electrical, acoustic, lighting, production design, and equipment sub-consultants
Provided detailed equipment and custom millwork plans for each room to determine a project budget. Architectural services required close coordination with the HVAC, electrical, acoustic, lighting, production design, and equipment sub-consultants
Location:
Bronx, New York, USA
Status:
Schematic Study - Completed
Client:
Fordham University / WFUV
Type:
Radio Station & Recording Studio
Size:
7,000 ft2 / 2,130 m2






