
Sports Complex
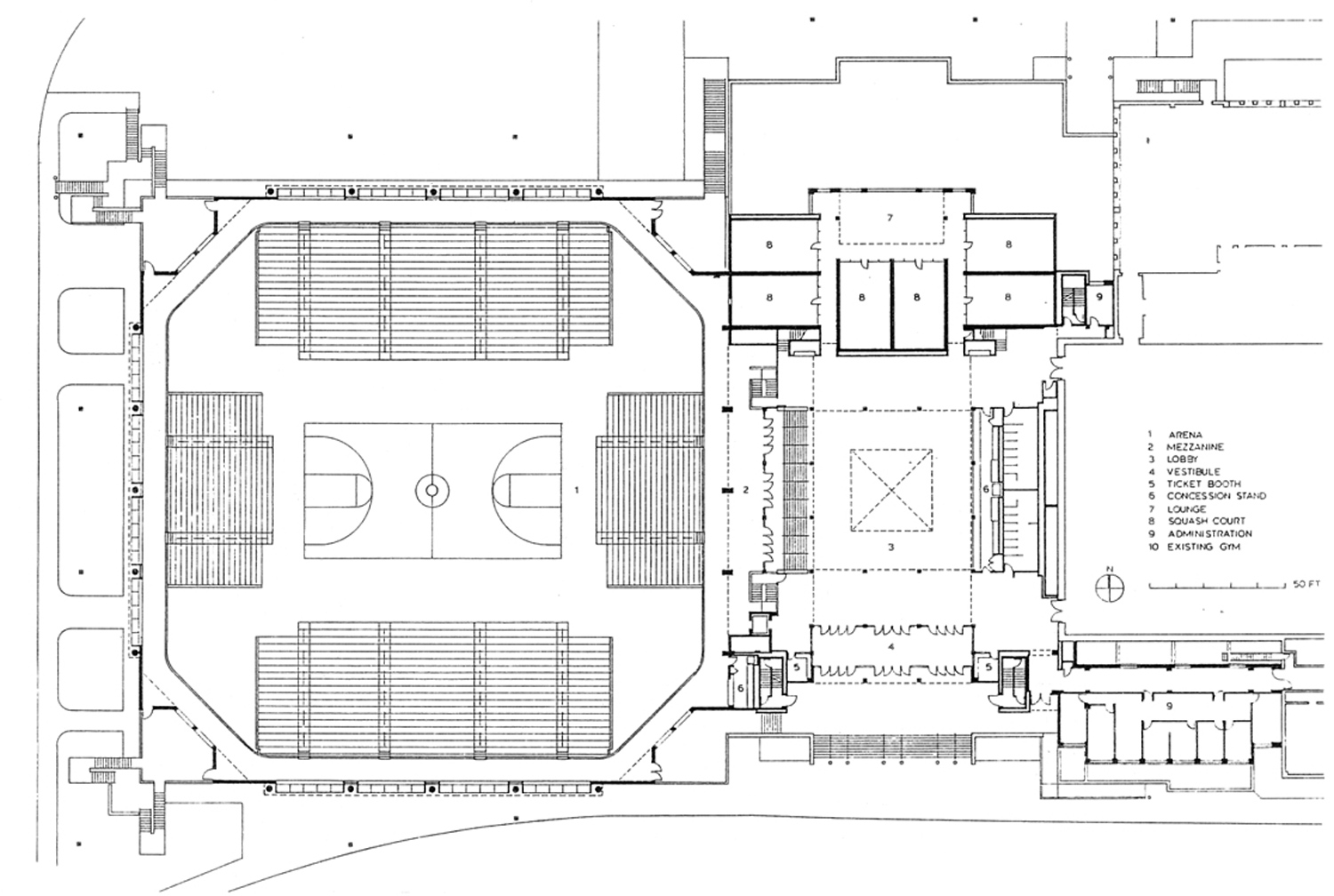
The Sports Complex at Stony Brook University is an addition to an existing 30-year-old facility. The addition contains a field house, six squash courts, a lounge overlooking the sports fields, therapy and team facilities, a laundry room and equipment distribution, and a lobby connecting the new and existing facilities.
The field house is a 44,000 sq ft multipurpose arena that seats 4,000 people. It is used for collegiate basketball and volleyball games but can also accommodate track and field events when the bleachers are retracted. The mezzanine access to the bleachers is a two-lane recreational jogging track when not used during athletic events.
The field house is a 44,000 sq ft multipurpose arena that seats 4,000 people. It is used for collegiate basketball and volleyball games but can also accommodate track and field events when the bleachers are retracted. The mezzanine access to the bleachers is a two-lane recreational jogging track when not used during athletic events.
Location:
Stony Brook, New York, USA
Status:
Completed
Client:
SUNY - Stony Brook
Type:
Collegiate Athletic + Recreation Facility
Size:
115,000 ft2 / 10,500 m2










