Gallery
535 8th Avenue
36 E. 31St Lobby
122 W. 27th Street
152 W. 25th Street
Axial Tech Company
Offer Pop Office
Imagine Easy Office
Cristina Grajales Gallery
400 Westchester, Fordham University
Keating Hall, Fordham University
Austrian Cultural Forum
Brooklyn Borough Hall
Higher Education
Higher Education

RCA Government Systems HQ
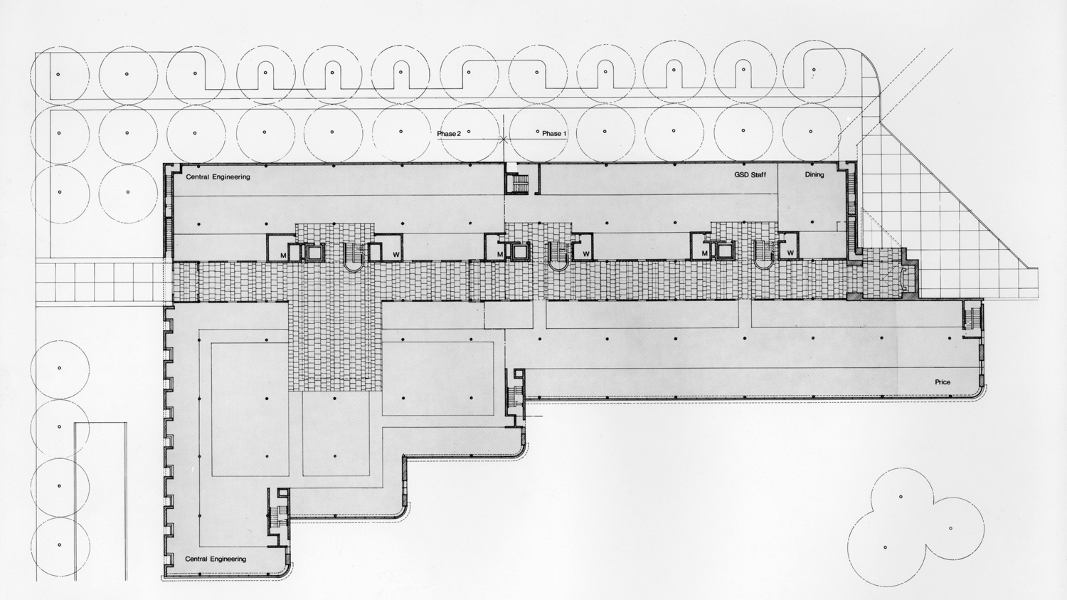
This project is a schematic design for a 120,000 sq ft two-phase electronics and office facility for RCA Government Systems. The metal façade provides a new “high tech” front for the corporation, while the brick facades relate to the existing factory buildings. On the south elevation, light shelves
bounce light deep into the building. Visitor Entrance and parking are provided at the east end of the building.
Staff parking is both under the building and at the west end. A sky-lit atrium runs the length of the building to establish a “public” street and to add light to the center of the building. Over the employee entrance, the atrium culminates in a large stained-glass window of the then-RCA logo.
Staff parking is both under the building and at the west end. A sky-lit atrium runs the length of the building to establish a “public” street and to add light to the center of the building. Over the employee entrance, the atrium culminates in a large stained-glass window of the then-RCA logo.
Location:
Moorestown, New Jersey, USA
Status:
Completed
Client:
RCA
Type:
Laboratories
Size:
120,000ft2 / 11,000m2







