Higher Education
Higher Education

344 W. 11th Street
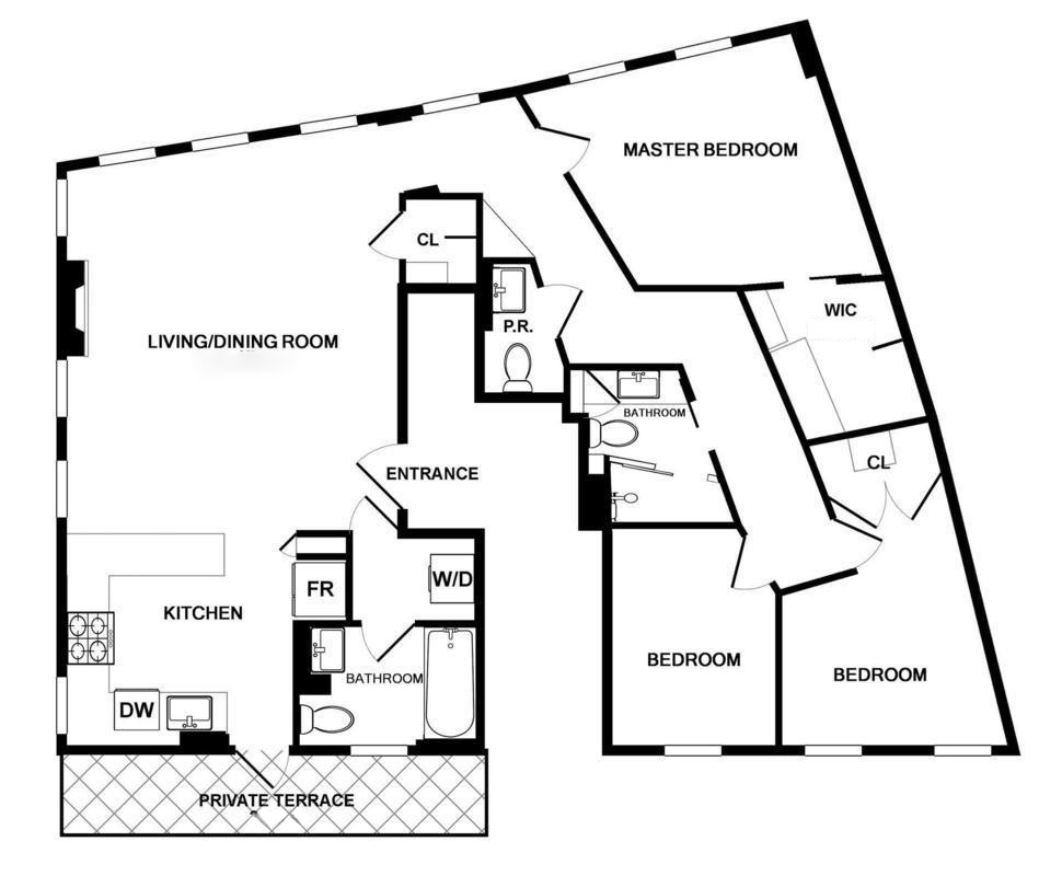
The second-floor apartment renovation is located in New York’s West Village neighborhood.
Location:
New York, New York, USA
Status:
Completed
Client:
Private
Type:
Residential
Size:
950ft2 / 88m2





